無料相談も承っております。
お気軽にお問い合わせください。
お急ぎの場合には
お電話でもお問い合わせいただけます。
<お電話対応時間>
9:00〜17:00 休日/GW、お盆、年末年始他
無料相談も承っております。
お気軽にお問い合わせください。
お急ぎの場合には
お電話でもお問い合わせいただけます。
<お電話対応時間>
9:00〜17:00 休日/GW、お盆、年末年始他
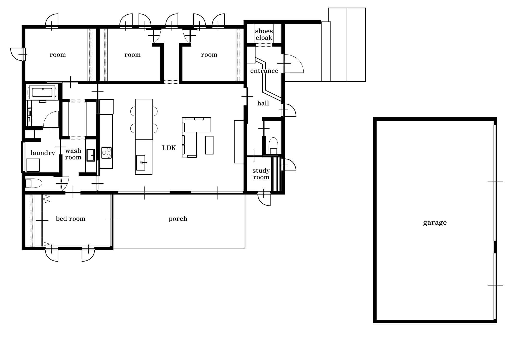
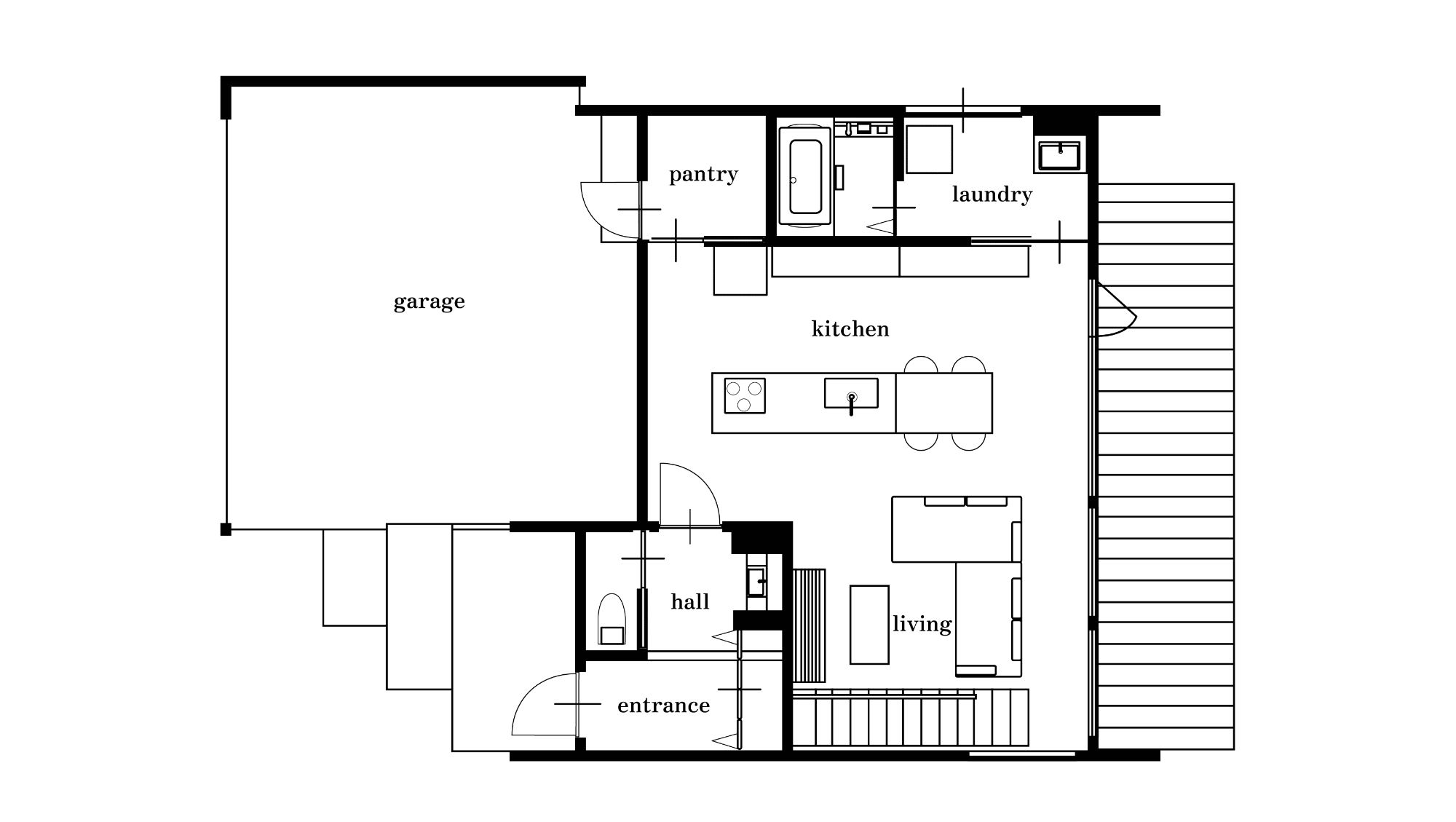
『高い天井に、
柱のない大空間』
木造でありながら、
自由に空間を開放する。

木造でありながら、鉄骨造のように自由な間取りを叶え、
かつ地震に強く耐久性の高い性能を持った住宅をつくることができる構法です。
「柱のないひとつづきの広いLDK」や「3mの高い吹き抜け天井」など
一般的な木造軸組構法では難しかった自由な間取りを叶えられます。
木造で鉄骨造のような
大空間を実現する
SE構法。
柱や壁を減らしつつ
耐震等級3を可能にした
理由とは?

柱や梁を剛接合し、強固な構造躯体をつくる鉄骨造で採用されている「ラーメン構造」。この仕組みを木造に取り入れたことにより、「壁や柱を少なくした大空間の間取りを叶える木造住宅」を実現したのがSE構法です。
100年後も同じ強さを保つSE金物
ビルやマンションなど鉄骨造やRC造の建物で行われている「許容応力度計算」という方法で、構造計算を実施しています。地震だけでなく台風などの自然災害に耐えうる強度を正確に数値で証明するための計算です。